 deDeutsch
deDeutsch13.04.2021
Was lange als undenkbar galt, ist heute Realität: Spitalbauten komplett aus Holz. Direkt neben dem Kantonsspital Freiburg wurde ein ehemaliges Kloster der katholischen Kirche zu einem Psychiatriespital umgenutzt und mit zwei Neubauten aus Holz erweitert.
Das Freiburger Netzwerk für psychische Gesundheit (RFSM) ist ein medizinisches und psychosoziales Kompetenzzentrum. In ambulanten und stationären Behandlungen betreut es seine Patientinnen und Patienten in den drei Bereichen für Kinder und Jugendliche, für Erwachsene und für ältere Menschen. In dieser neuen Klinik sollen die deutschsprachigen Bewohner des Kanton Freiburg behandelt werden können, welche sich bislang für eine Behandlung ihrer Anliegen nach Marsens oder in den Kanton Bern orientieren mussten. Eine deutsch geführte Einrichtung hat bisher im Kanton gefehlt. Die Umnutzung wird in drei Etappen vollzogen: Zuerst wurden die bestehenden Gebäude saniert. Die zwei Holzbauten F und G erweitern den Gebäudekomplex.
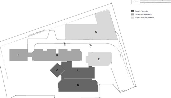
Grundriss des Freiburger Netzwerk für psychische Gesundheit (RFSM). Die Gebäude A bis E wurden saniert. Gebäude F ist ein Spitalbau aus Holz, der Bürokomplex G wird fast ausschliesslich aus Schweizer Holz gebaut. Quelle: LZA Architekten
Brandschutz/Grundlagen
für Spitäler in Holzbauweise 
Holz ist ein sicheres Baumaterial. Auch in
Bezug auf den Brandschutz. Weil das so ist, lässt die neue Generation der Brandschutzvorschriften
BSV 2015 neue Möglichkeiten für den Holzbau zu. Seit Einführung der aktuellen
Brandschutzvorschriften dürfen alle Gebäude aus Holz konstruiert werden –
unabhängig von deren Nutzung. Kurz gesagt: Holz normalisiert sich als Baustoff
ohne Sonderregelung. Die Brandschutznorm beschreibt zwei
Standardkonzepte: 
Aus dem gewählten Konzept ergeben sich die
Anforderungen an die Konstruktion und die Bauteile. Die neuen Gebäude G und F
wurden nach dem baulichen Konzept erstellt. Für das Gebäude F bedeutet das:
Jedes Zimmer ist ein eigener Brandabschnitt. Ein Patient muss von einem Feuer
im Nachbarszimmer und dessen Rauchentwicklung während 60 Minuten geschützt
sein. Die tragenden und brandabschnittbildenden Bauteile müssen als gekapselte Konstruktion ausgebildet
sein. Das heisst: Brennbare Bauteile müssen mit einem geeigneten Baustoff beplankt werden, der
keinen Brandbeitrag leistet wie zum Beispiel Gipsfaserplatten.
Drei Details aus dem Gebäude F. Links: Das Tragwerk und die Geschossdecke sind als gekapselte Bauteile konstruiert. Der Schallschutz wird mit einer elastisch gebundenen Schüttung sichergestellt. So kann vollständig auf Beton verzichtet werden. Mitte: Die gekapselten Stützen liegen auf einem Stahlträger auf. Dieser trägt die gekapselte Geschossdecke. So können alle Aussen- und Innenwände nicht tragend ausgebildet werden. Rechts: Auch der Liftschacht des viergeschossigen Gebäudes ist eine Holzkonstruktion.
Schweizer
Holz 
Holz ist ein natürlich nachwachsender Rohstoff, der für seine
Herstellung nur Sonnenenergie und Wasser benötigt. Ernte und Verarbeitung
erfolgen sehr energiearm, und das Material speichert erst noch das Treibhausgas
CO₂. Noch besser schneidet Holz aus der Schweiz ab: Einheimisches Holz wird
nicht weit transportiert, was die darin enthaltene Graue Energie reduziert. Das
Gebäude G wurde mit dem Label Schweizer Holz zertifiziert.
Im aktuellen Holzbulletin wird der Umbau RFSM ausführlich vorgestellt.