Une nouvelle vie pour le moulin du château d'Aarau

23.07.2020

Depuis 1974, la roue tourne à nouveau au Schlossmühle d'Aarau. A l'époque, elle avait été offerte par le moulin de Bözen à Aarau. Mais la roue tournait en vain. L'intérieur du moulin était vide et servait d'entrepôt. Aujourd'hui, le moulin du château fait l'objet d'une rénovation complète. Timbatec a calculé la statique des nombreux éléments de construction en bois.

Une nouvelle vie pour le moulin du château d'Aarau

Très vite, la machine moud les la roue à eau produit des céréales, de la moutarde et des épices. La société du moulin à vent est à l'œuvre. Schlossmühle Aarau. Celle-ci veut remettre en marche le moulin du château.

Image Mühle Aarau

"Au milieu de la ville d'avoir un tel moulin qui fonctionne à nouveau activement, c'est quelque chose de très spécial. spécial", déclare Urs Wälchli, président de la société du moulin du château. Il aide lui-même à réaménager l'intérieur.

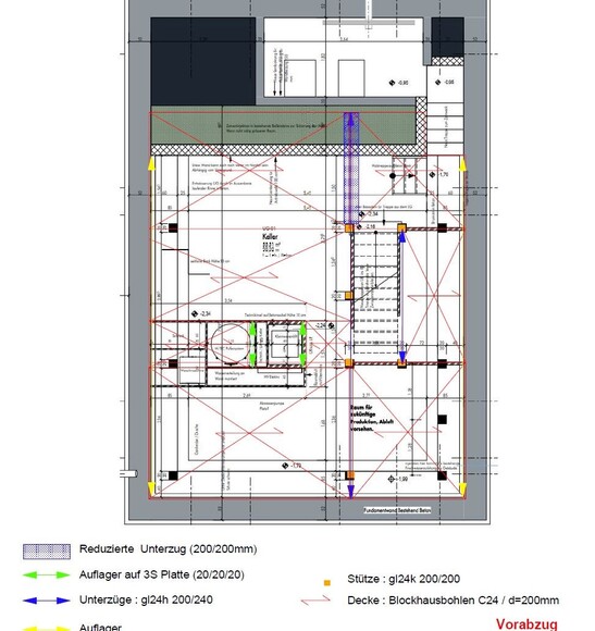
Pour cela, de nombreux pièces, par exemple le moulin à moutarde et le tamis à farine, ont été reconstruits. Au-dessus du sous-sol et le rez-de-chaussée sont recouverts de nouveaux plafonds en madriers. Timbatec a calculé les les sections et les dimensions des éléments en bois neufs et rénovés, afin qu'ils soient L'entreprise de construction Zubler AG a finalement réalisé les travaux.

Plan statique du moulin d'Aarau

La force de la roue à eau suffit à faire fonctionner le moulin à moutarde. Les lourdes meules sont actionnées pour les céréales sont mises en mouvement électriquement. La société a pas seulement rénové et réaménagé l'intérieur du moulin du château. Elle a créé également créé une pièce supplémentaire qui est utilisée comme cave à moutarde. "Nous y planifie également des apéritifs et des activités culturelles", explique Urs Wälchli.

Sources et crédits photographiques : www.srf.ch,www.muehleaarau.ch,www.chalira.ch

Protection des données
Ce site web utilise des composants externes qui peuvent être utilisés pour collecter des données sur votre comportement. Pour en savoir plus, consultez nos informations sur la protection des données.