21.11.2025
The planning team led by gdap architectes sàrl, Geneva, achieved 2nd place in the «EMS Alp'Age-PSVJ» competition with the «ELSA» project. The design is based on a clear timber construction method and harmoniously integrates the nursing home into the challenging topography and the surrounding educational and healthcare area.
© Images: gdap architectes sàrl, Geneva
© Rendering: gdap architectes sàrl, Geneva
© Visualization: gdap architectes sàrl, Geneva
The «Concours EMS Alp'Age-PSVJ» project involved planning a nursing home (EMS) with a focus on integrating it into an existing environment with challenging topography. The aim was to create a harmonious connection between a nursing home, a secondary school and a health center. The architecture of the building is designed to create optimal integration into the natural environment and all floor exits are accessible to the outside areas.
© Images: gdap architectes sàrl, Geneva
© Rendus: gdap architectes sàrl, Geneva
© Visualization: gdap architectes sàrl, Geneva
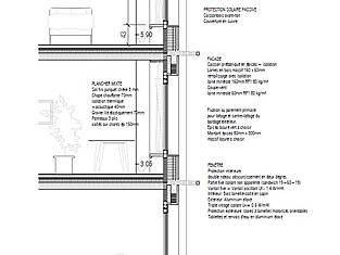
The nursing home was designed as a timber construction. The facade consisted of prefabricated spruce wood elements with mineral insulation, the windows of laminated spruce wood with anodized aluminium cladding. The insulation and glazing met high energy requirements. The roof was extensively greened and equipped with photovoltaics.
A key challenge was embedding the building in the steeply sloping terrain. Paths and access points were planned in such a way that the gradient did not exceed 6%. There were also discussions about removing a mound to create a larger clearing as a meeting space.
The building followed a cloverleaf-shaped structure that allowed for clear organization: The first floor contained communal areas, a student dormitory as well as a kitchen and laundry. The upper floors each offered three residential units, connected via a central core with elevators and care areas. The rooms were designed for individuality, security and good lighting and offered access to a protected outdoor space.
The project emphasized ecological construction methods, functional processes and an environment that met the needs of the residents. The combination of timber construction, careful landscape planning and intergenerational approaches made it a strong example of contemporary care homes.
Many thanks to all those involved in the competition - for their commitment, the exchange of ideas and the strong joint performance. Looking back on the result, we can only justifiably hope that we will soon be able to work together on the next project or process.
| Area of responsibility | Carrier |
|---|---|
| Architecture | gdap architectes sàrl, Geneva |
| Structural engineering in timber construction | Timbatec ingéneiurs bois SA, Delémont |
| Civil engineer | Solid construction | 2M ingénierie civile sa, Yverdon-les-Bains |
| Landscape architecture | Studio Mint sàrl, Landscape architect, Carrouge |
| Visualizations | gdap architectes sàrl, Geneva |
