1st prize for CircularTower in Burgdorf

21.11.2022

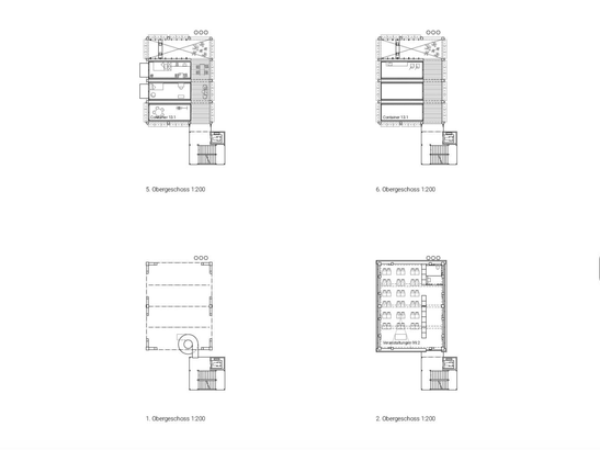
The «CircularTower» project brings circular construction to life. The «Setzkasten» project by the Biel-based architectural firm Inhelder Osterwalder Architekten in collaboration with Timbatec Holzbauingenieure was recommended for implementation.

1st prize for CircularTower in Burgdorf

The future «CircularTower» will be occupied by companies, educational and research institutions as well as associations together with the TecLab and will serve as a real laboratory and source of inspiration for further projects in the field of circular economy. In addition to events, research and development projects on innovative, recyclable materials, methods and products will find space in and around the building.

The ideas competition generated possibilities for implementing the «CircularTower». In awarding the winning project, the competition jury focused on sustainable construction, the use of renewable and climate-neutral materials, the use of recycled components and the reusability of the new components.

The «Setzkasten» project by the Biel-based architectural firm Inhelder Osterwalder Architekten in collaboration with Timbatec Holzbauingenieure was recommended for implementation. It captivates with its differentiated architectural expression of circular building, the clever inclusion of the public, the changeability and the theme of simple building.

We congratulate Inhelder Osterwalder Architekten on the successful design and look forward to an exciting collaboration. For more information, please visit www.inhelderosterwalder.ch or www.teclab.swiss

Privacy notice
This website uses external components that can be used to collect data about your behavior. Read more about this in our privacy policy.